banner

コンテナハウス

新製品

米国受付ビル

2025-08-21

2023年に米国に受付棟用コンテナハウスを供給しました。

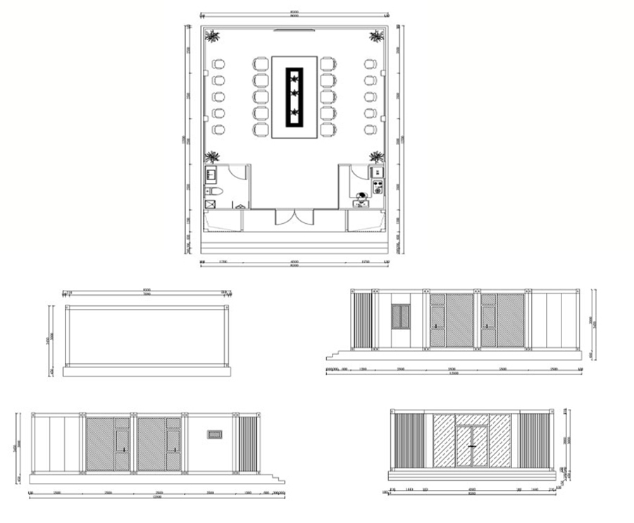
プロジェクト名: 米国受付ビル

Yumisteelは、構造エンジニアリングから仕上げまで、包括的なソリューションを提供しています。住宅ポートフォリオからインスピレーションを得てください。

デザイン

Design drawings

E 外装

Exterior of the Reception building

Exterior of the Reception building

インテリア

内装はファイバー装飾パネルを使用しており、非常に清潔で整然としていて美しいです。

Interior of the Reception building

Interior of the Reception building

Toilets in the reception building


お客様独自のカスタマイズされたコンテナ ハウスの詳細については、ぜひ当社にお問い合わせください。

さらに詳しい情報やご質問がございましたら、お気軽にYumisteelチームまでご連絡ください。

伝言を残す
当社の製品に興味があり、詳細を知りたい場合は、ここにメッセージを残してください、できるだけ早く返信します。

建築および土木工事の先駆者

33

積年の経験

 
伝言を残す 伝言を残す
当社の製品に興味があり、詳細を知りたい場合は、ここにメッセージを残してください、できるだけ早く返信します。